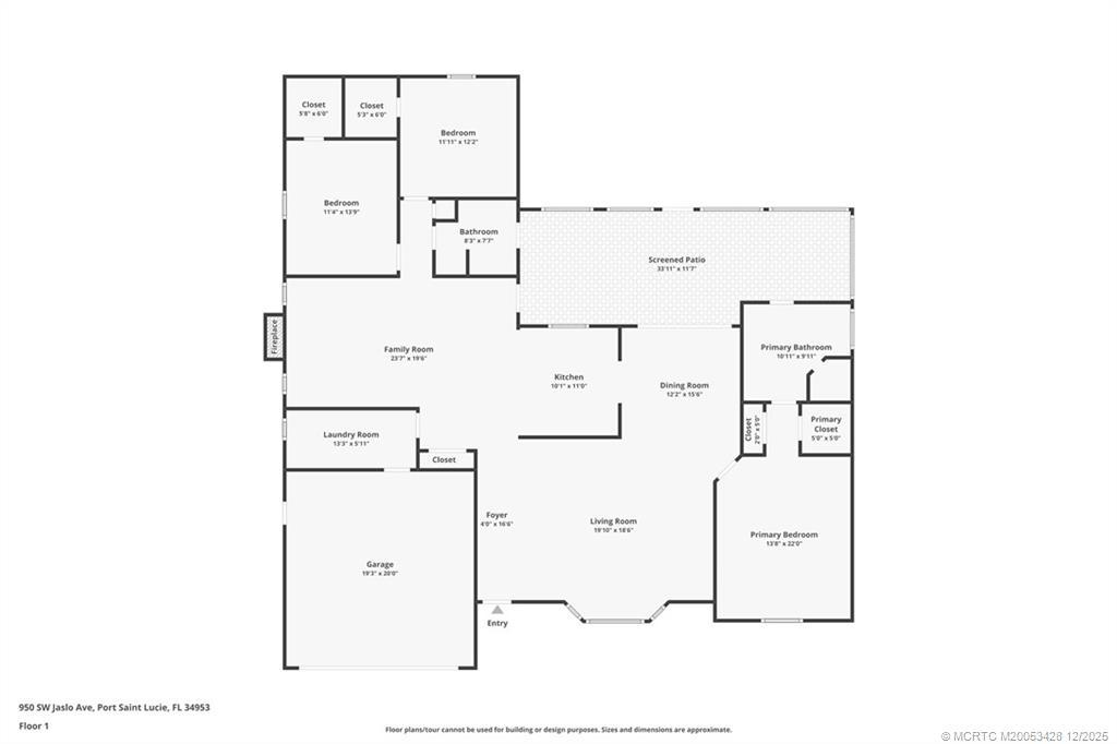
Discover outstаnding vаlue іn this 3‐bed, 2-bath split-bedrοom hοme in Port St. Lucie, offering a solid foundation and the opportunity to add your own style with simple updates. A new 2025 roof provides peace of mind, and both panel and accordion shutters offer reliable storm protection. The living room features a charming bay window that fills the space with natural light, while the family room is anchored by a cozy wood-burning fireplace. A formal dining room overlooks the fully screened and covered patio and the spacious yard. The galley kitchen also includes backyard views and a convenient passthrough window for easy entertaining. Each of the three bedrooms has a walk-in closet, and both bathrooms have direct access to the patio. Additional highlights include a skylight, an existing fenced dog run and room for a pool. Located on a quiet street near Tradition, St. Lucie West, the Turnpike and I-95, with zoned schools within 5 miles. Schedule your private showing with me today.
View Virtual TourRanch, Traditional, Ranch, Traditional
Electricity Connected, Sewer Connected, Water Connected
Attached, Driveway, Garage, Garage Door Opener
Some Electric Appliances, Clothes dryer, Dishwasher, Electric Range, Disposal, Microwave oven, Refrigerator, Water Heater, Clothes washer, Freezer, Ice Maker
Central Air, Ceiling Fan(s), Electric
Patio, Storm/Security Shutters, Fence
(FAU) Florida Atlantic University has it's Treasure Coast campus located in Port St Lucie.
Port Saint Lucie is home to the New York Mets farm team the St. Lucie Mets. Come watch this future professional talent play at the Digital Domain Field.

The data relating to real estate for sale on this web site comes in part from a cooperative data exchange program of the Realtor® Association of Martin County, Inc. MLS. Real estate listings held by brokerage firms other than Waterfront Properties and Club Communities are marked with the IDX logo (Broker Reciprocity) or name and detailed information about such listings includes the name of the listing brokers. Data provided is deemed reliable but is not guaranteed.
IDX information is provided exclusively for consumers' personal, non-commercial use, that it may not be used for any purpose other than to identify prospective properties consumers may be interested in purchasing.
Copyright 2025 Realtor® Association of Martin County, Inc. MLS. All rights reserved.
Listing information last updated on December 16th, 2025 at 5:15am CST.