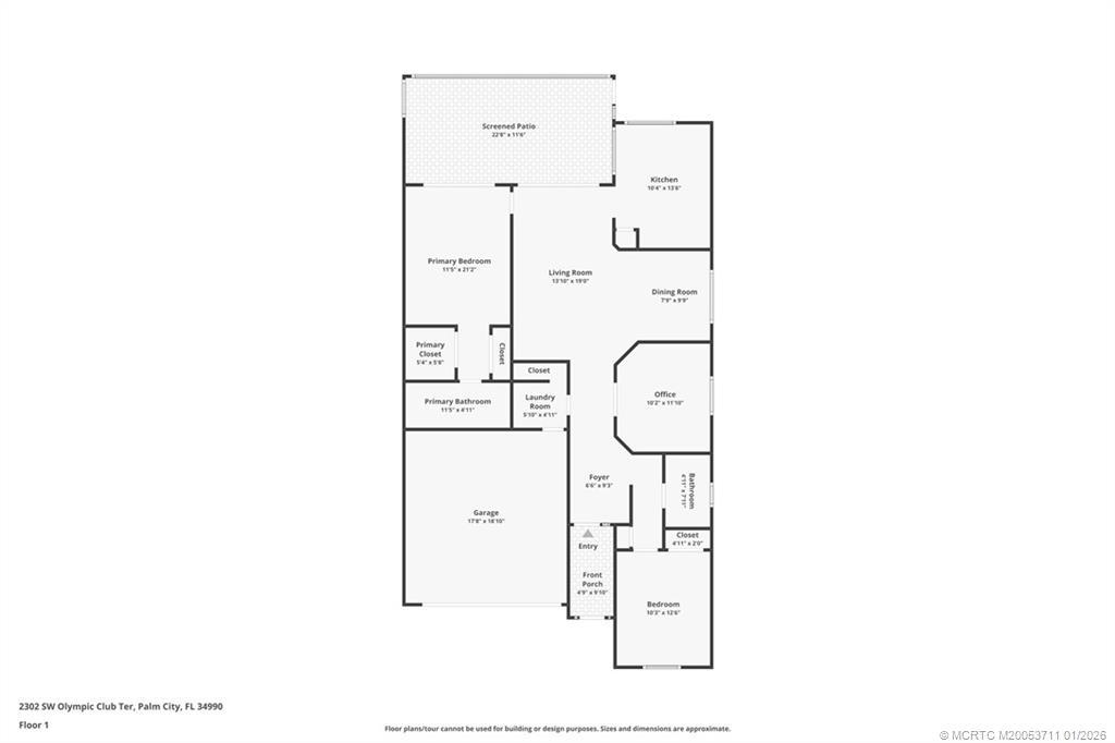
Located in the dеsіrablе Charter Club аt Martin Downs, this well‐maіntained 2-bedroom, 2-bath home includes a den with solid wood doors, providing flexible space for a home office or guest room. The open layout has vaulted ceilings and light-filled living spaces. A bright white kitchen, overlooks the backyard with granite countertops, SS appliances and a pantry. Recent updates include a '22 Trane A/C, updated primary bathroom with double vanity and new tile, fresh interior paint, new bedroom carpeting, resealed windows, and a new screen door. The screen enclosure has been refinished, new gutters installed, and the home includes roll-down hurricane shutters. Enjoy a peekaboo water view along with HOA amenities: community pool, tennis/pickleball courts, security system, cable, internet, and lawn care. Located within Palm City’s A-rated school district, with convenient access to I-95, the Florida Turnpike, shopping, dining, golf, and all that the Treasure Coast has to offer.
Electricity Connected, Sewer Connected, Water Connected
Clubhouse, Pickleball, Pool, Street Lights, Tennis Court(s), Gated
Sprinkler/Irrigation, Porch, Patio, Shutters Electric
Sprinklers Automatic, 0.118 Acres

The data relating to real estate for sale on this web site comes in part from a cooperative data exchange program of the Realtor® Association of Martin County, Inc. MLS. Real estate listings held by brokerage firms other than Waterfront Properties and Club Communities are marked with the IDX logo (Broker Reciprocity) or name and detailed information about such listings includes the name of the listing brokers. Data provided is deemed reliable but is not guaranteed.
IDX information is provided exclusively for consumers' personal, non-commercial use, that it may not be used for any purpose other than to identify prospective properties consumers may be interested in purchasing.
Copyright 2026 Realtor® Association of Martin County, Inc. MLS. All rights reserved.
Listing information last updated on January 16th, 2026 at 7:02pm CST.