1. Home
  2. Search Listings
  3. 398 Sw Ray Avenue Port St. Lucie, FL - 34983
  • MLS® #: R11133810
  • 398 Sw Ray Avenue
  • Port St. Lucie, FL 34983
  • $289,900
  • 3 Beds, 2 Bath, 1,916 SqFt
  • Residential

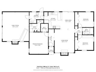
Located on a corner lot in the heart of Port St. Lucie, this frame construction pool home offers unique architectural details and incredible potential. The interior features cathedral-style cedar tongue-and-groove ceilings, two fireplaces (one in the living room and one in the converted bar/entertainment area), and a spacious kitchen perfect for future renovations and entertaining. The garage has been converted into a game room with a bar , adding flexible living space. Buyer to verify exposure all measurements are approximate NO SITE UNSEEN OFFERS

Essential Information

  • MLS® #R11133810
  • Price$289,900
  • CAD Dollar$400,366
  • UK Pound£219,007
  • Euro€252,779
  • Bedrooms3
  • Bathrooms2.00
  • Full Baths2
  • Square Footage1,916
  • Year Built1984
  • TypeResidential
  • Sub-TypeSingle Family Residence
  • RestrictionsNo Restrictions
  • StyleRanch, Rustic
  • StatusActive Under Contract
  • HOPANo Hopa

Community Information

  • Address398 Sw Ray Avenue
  • Area7270
  • SubdivisionPORT ST LUCIE SECTION 4
  • CityPort St. Lucie
  • CountySt. Lucie
  • StateFL
  • Zip Code34983

Amenities

  • AmenitiesNone
  • Parking Spaces2
  • ParkingCircular Driveway
  • ViewOther
  • WaterfrontNone
  • Has PoolYes
  • Pets AllowedNo

Utilities

Sewer Available, Water Available

Pool

Gunite, In Ground, Screen Enclosure

Interior

  • HeatingCentral, Electric
  • CoolingCentral Air, Electric
  • FireplaceYes
  • FireplacesDecorative
  • # of Stories1

Interior Features

Cathedral Ceiling(s), Vaulted Ceiling(s), Walk-In Closet(s), Bedroom Layout - Split

Exterior

  • RoofComposition, Shingle
  • ConstructionFrame

School Information

  • ElementarySavanna Ridge
  • MiddleNorthport K-8
  • HighSt. Lucie West Centennial
  • Office: Pinnacle Real Estate Group

Property Location

Please provide a valid email address.

398 Sw Ray Avenue on www.stuarthomes.us

Offered at the current list price of $289,900, this home for sale at 398 Sw Ray Avenue features 3 bedrooms and 2 bathrooms. This real estate listing is located in PORT ST LUCIE SECTION 4 of Port St. Lucie, FL 34983 and is approximately 1,916 square feet. 398 Sw Ray Avenue is listed under the MLS ID of R11133810 and has been available through www.stuarthomes.us for the Port St. Lucie real estate market for 26 days.

Similar Listings to 398 Sw Ray Avenue

Photo of Listing #R11164605
  • MLS® #: R11164605
  • 1202 Sw Granadeer Street
  • Port St. Lucie, FL 34983
  • $289,900
  • 3 Bed, 2 Bath, 992 SqFt
  • Residential
Add as Favorite
Photo of Listing #R11137256
  • MLS® #: R11137256
  • 201 Se Walters Terrace
  • Port St. Lucie, FL 34983
  • $299,900
  • 2 Bed, 2 Bath, 1,324 SqFt
  • Residential
Add as Favorite
Photo of Listing #R11151203
  • MLS® #: R11151203
  • 307 Se Husted Terrace
  • Port St. Lucie, FL 34983
  • $299,900
  • 2 Bed, 2 Bath, 962 SqFt
  • Residential
Add as Favorite
Photo of Listing #F10511630
  • MLS® #: F10511630
  • 118 Sw Ray Avenue
  • Port St. Lucie, FL 34983
  • $275,000
  • 2 Bed, 2 Bath, 900 SqFt
  • Residential
Add as Favorite

All listings featuring the BMLS logo are provided by Beaches MLS Inc. Copyright 2026 Beaches MLS. This information is not verified for authenticity or accuracy and is not guaranteed.
© 2026 Beaches Multiple Listing Service, Inc. All rights reserved.

Listing information last updated on March 14th, 2026 at 1:49pm CDT.