1. Home
  2. Search Listings
  3. 682 Nw Cardinal Drive Port St. Lucie, FL - 34983
  • MLS® #: R11149897
  • 682 Nw Cardinal Drive
  • Port St. Lucie, FL 34983
  • $249,900
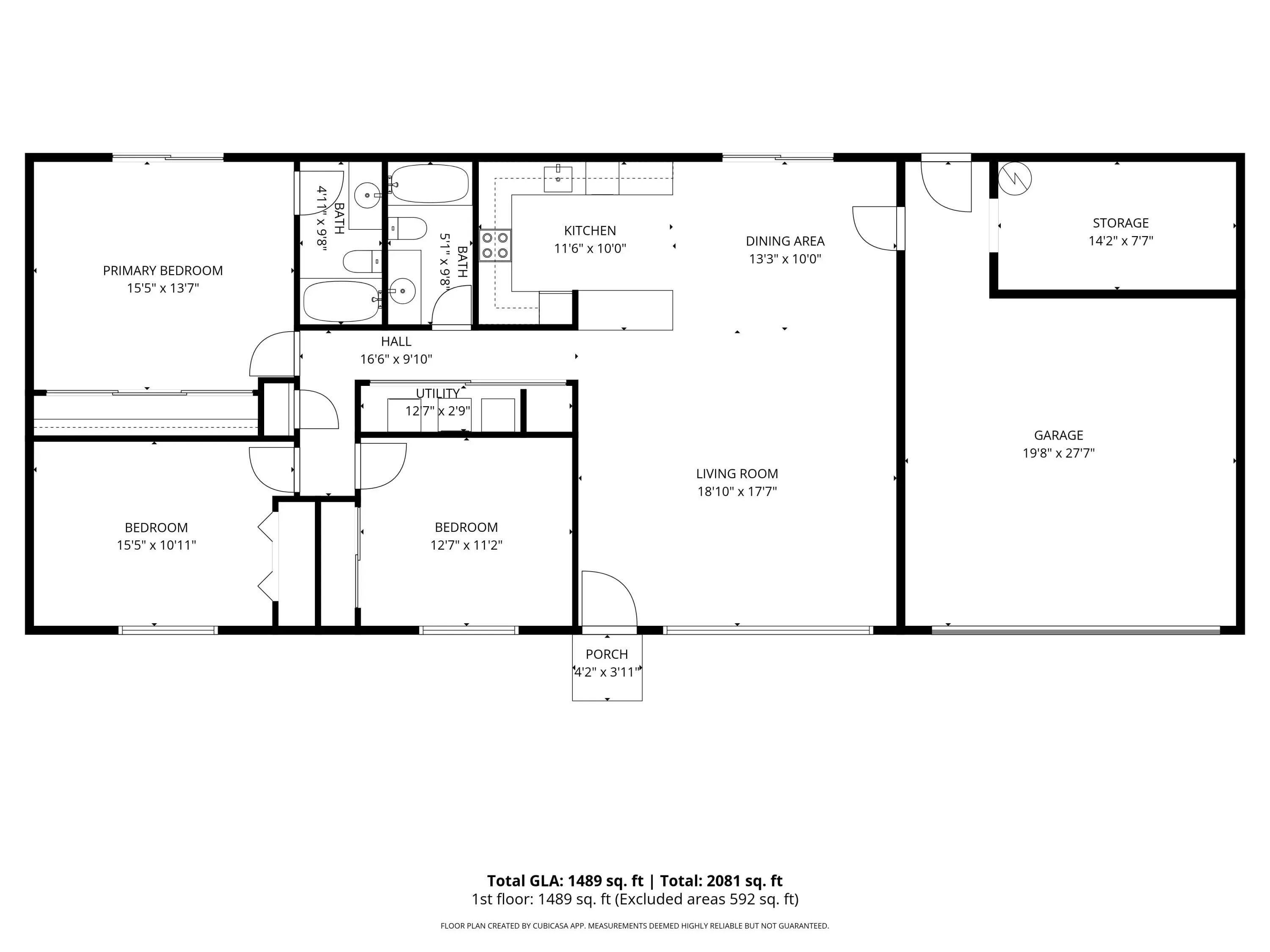
  • 3 Beds, 2 Bath, 1,456 SqFt
  • Residential

$2026 TOWARDS BUYERS CLOSING COSTS WITH FULL PRICE OFFER EXECUTED ON OR BEFORE 12/31/2025 MUST CLOSE BY 1/31/2026 Opportunity awaits, situated on a rare ½-acre corner lot with no HOA, this 3-bedroom, 2-bath home with a 2-car garage offers strong upside for investors, renovators, or buyers looking to create a custom residence. The property encompasses approximately 1,456 sq ft, features a functional stacked floor plan with spacious living and dining areas. The home requires a full renovation and is being sold as-is, CAN BE BOUGHT AS A PORTFOLIO WITH 5 OTHER PROPERTIES ALL MEASUREMENTS ARE APPROXIMATE

Essential Information

  • MLS® #R11149897
  • Price$249,900
  • CAD Dollar$345,124
  • UK Pound£188,789
  • Euro€217,996
  • Bedrooms3
  • Bathrooms2.00
  • Full Baths2
  • Square Footage1,456
  • Year Built1980
  • TypeResidential
  • Sub-TypeSingle Family Residence
  • RestrictionsNo Restrictions
  • StyleRanch
  • StatusActive Under Contract
  • HOPANo Hopa

Community Information

  • Address682 Nw Cardinal Drive
  • Area7270
  • SubdivisionPORT ST LUCIE SECTION 25
  • CityPort St. Lucie
  • CountySt. Lucie
  • StateFL
  • Zip Code34983

Amenities

  • AmenitiesNone
  • Parking Spaces2
  • ParkingGarage, Attached Garage
  • # of Garages2
  • ViewOther
  • WaterfrontNone
  • Pets AllowedYes, No Restrictions

Utilities

Sewer Available, Water Available

Interior

  • Interior FeaturesBedroom Layout - Stacked
  • HeatingCentral
  • CoolingCentral Air
  • # of Stories1

Exterior

  • RoofComposition, Shingle
  • ConstructionFrame
  • Office: Pinnacle Real Estate Group

Property Location

Please provide a valid email address.

682 Nw Cardinal Drive on www.stuarthomes.us

Offered at the current list price of $249,900, this home for sale at 682 Nw Cardinal Drive features 3 bedrooms and 2 bathrooms. This real estate listing is located in PORT ST LUCIE SECTION 25 of Port St. Lucie, FL 34983 and is approximately 1,456 square feet. 682 Nw Cardinal Drive is listed under the MLS ID of R11149897 and has been available through www.stuarthomes.us for the Port St. Lucie real estate market for 72 days.

Similar Listings to 682 Nw Cardinal Drive

Photo of Listing #R11135308
  • MLS® #: R11135308
  • 566 Nw Marion Avenue
  • Port St. Lucie, FL 34983
  • $269,750
  • 2 Bed, 2 Bath, 1,026 SqFt
  • Residential
Add as Favorite
Photo of Listing #F10548841
  • MLS® #: F10548841
  • 321 Ne Genesee Avenue
  • Port St. Lucie, FL 34983
  • $264,000
  • 2 Bed, 2 Bath, 988 SqFt
  • Residential
Add as Favorite
Photo of Listing #R11159903
  • MLS® #: R11159903
  • 161 Se Bonita Court
  • Port St. Lucie, FL 34983
  • $265,000
  • 2 Bed, 1 Bath, 792 SqFt
  • Residential
Add as Favorite
Photo of Listing #R11160423
  • MLS® #: R11160423
  • 738 Sw Ravenswood Lane
  • Port St. Lucie, FL 34983
  • $269,000
  • 2 Bed, 2 Bath, 894 SqFt
  • Residential
Add as Favorite

All listings featuring the BMLS logo are provided by Beaches MLS Inc. Copyright 2026 Beaches MLS. This information is not verified for authenticity or accuracy and is not guaranteed.
© 2026 Beaches Multiple Listing Service, Inc. All rights reserved.

Listing information last updated on March 14th, 2026 at 10:00pm CDT.