1. Home
  2. Search Listings
  3. 898 Se Evergreen Terrace Port St. Lucie, FL - 34983
  • MLS® #: R11153078
  • 898 Se Evergreen Terrace
  • Port St. Lucie, FL 34983
  • $382,500
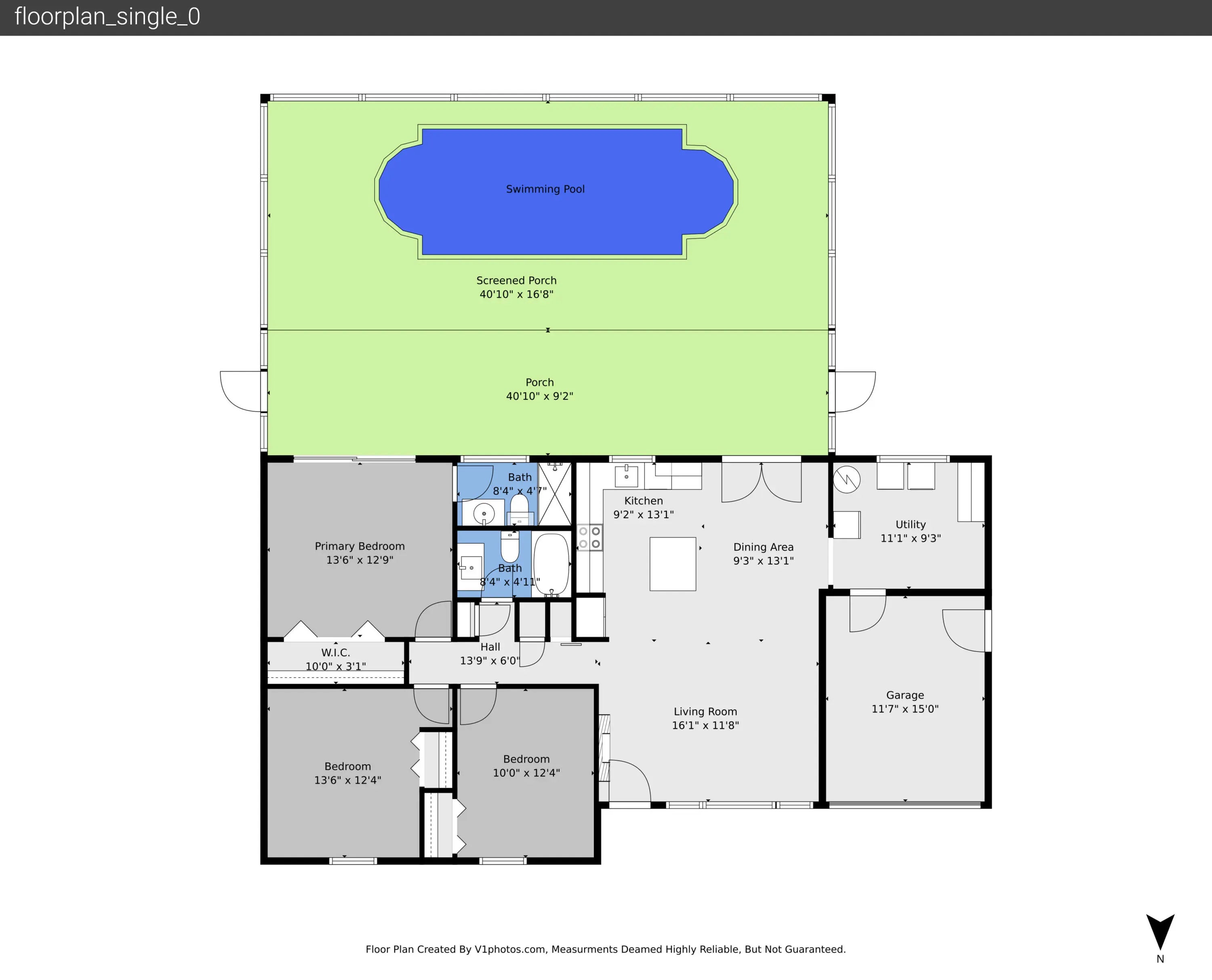
  • 3 Beds, 2 Bath, 1,308 SqFt
  • Residential

Welcome to 898 SE Evergreen Terrace, a well-maintained home ideally located just off Port St. Lucie Blvd, offering the perfect balance of comfort, convenience, and outdoor Florida living. This property provides peace of mind with several major upgrades, including a new roof (2022) that is pitched with rigid core panels for rain water to shed right off the roof, newly remodeled bathrooms and new kitchen featuring stainless steel appliances. A new HVAC system (2021), impact windows installed in 2025, brand new 50 gallon hot water heater and a recently resurfaced pool, making it truly move-in ready. Enjoy an active waterfront lifestyle with a boat ramp within walking distance, providing quick access to the St. Lucie River—perfect for kayaking, fishing, and enjoying nature just minutes from your front door. The private pool area offers an ideal space for relaxing or entertaining year-round. Conveniently located near the Crosstown Parkway, the home offers easy access to I-95, making travel effortless while remaining close to St. Lucie West, shopping, dining, and all major amenities. Whether you're seeking a primary residence, seasonal retreat, or lifestyle-driven home, this property delivers value, location, and quality upgrades in one complete package. Schedule your private showing today and experience the best of Port St. Lucie living.

Essential Information

  • MLS® #R11153078
  • Price$382,500
  • CAD Dollar$519,892
  • UK Pound£285,607
  • Euro€330,949
  • Bedrooms3
  • Bathrooms2.00
  • Full Baths2
  • Square Footage1,308
  • Year Built1973
  • TypeResidential
  • Sub-TypeSingle Family Residence
  • RestrictionsNo Restrictions
  • StyleRanch
  • StatusActive
  • HOPANo Hopa

Community Information

  • Address898 Se Evergreen Terrace
  • Area7170
  • SubdivisionPORT ST LUCIE SECTION 3
  • CityPort St. Lucie
  • CountySt. Lucie
  • StateFL
  • Zip Code34983

Amenities

  • AmenitiesNone
  • ParkingGarage
  • # of Garages1
  • WaterfrontNone
  • Has PoolYes
  • Pets AllowedYes, No Restrictions

Utilities

Cable Available, Sewer Available, Water Available

Pool

Gunite, Heated, In Ground, Concrete

Interior

  • Interior FeaturesPantry
  • HeatingCentral, Electric
  • CoolingCentral Air, Electric
  • # of Stories1
  • StoriesMulti/Split

Appliances

Electric Water Heater, Dishwasher, Electric Range, Microwave, Refrigerator, Water Heater

Exterior

  • RoofMetal
  • ConstructionCBS
  • Office: Atlantic Shores Era Powered

Property Location

Please provide a valid email address.

898 Se Evergreen Terrace on www.stuarthomes.us

Offered at the current list price of $382,500, this home for sale at 898 Se Evergreen Terrace features 3 bedrooms and 2 bathrooms. This real estate listing is located in PORT ST LUCIE SECTION 3 of Port St. Lucie, FL 34983 and is approximately 1,308 square feet. 898 Se Evergreen Terrace is listed under the MLS ID of R11153078 and has been available through www.stuarthomes.us for the Port St. Lucie real estate market for 62 days.

Similar Listings to 898 Se Evergreen Terrace

Photo of Listing #R11144909
  • MLS® #: R11144909
  • 1346 Se Floresta Drive
  • Port St. Lucie, FL 34983
  • $394,990
  • 3 Bed, 2 Bath, 1,552 SqFt
  • Residential
Add as Favorite
Photo of Listing #R11154788
  • MLS® #: R11154788
  • 882 Se Walters Terrace
  • Port St. Lucie, FL 34983
  • $389,900
  • 3 Bed, 2 Bath, 1,196 SqFt
  • Residential
Add as Favorite
Photo of Listing #R11166933
  • MLS® #: R11166933
  • 1011 Se Euclid Lane
  • Port St. Lucie, FL 34983
  • $399,999
  • 3 Bed, 2 Bath, 1,256 SqFt
  • Residential
Add as Favorite
Photo of Listing #R11137399
  • MLS® #: R11137399
  • 409 Se Gasparilla Avenue
  • Port St. Lucie, FL 34983
  • $420,000
  • 3 Bed, 2 Bath, 1,628 SqFt
  • Residential
Add as Favorite

All listings featuring the BMLS logo are provided by Beaches MLS Inc. Copyright 2026 Beaches MLS. This information is not verified for authenticity or accuracy and is not guaranteed.
© 2026 Beaches Multiple Listing Service, Inc. All rights reserved.

Listing information last updated on March 13th, 2026 at 5:17am CDT.