1. Home
  2. Search Listings
  3. 2033 Ne Ocean Dunes Drive Jensen Beach, FL - 34957
  • MLS® #: R11159093
  • 2033 Ne Ocean Dunes Drive
  • Jensen Beach, FL 34957
  • $534,900
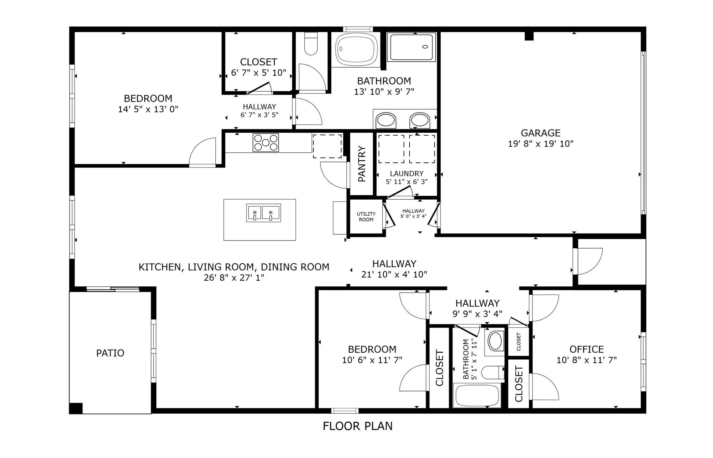
  • 3 Beds, 2 Bath, 1,672 SqFt
  • Residential

Let's Make a Deal/ Motivated Seller. Wow, Check Out This Stunning Aria Model. This 3-Bed, 2-Bath, 2 Car Garage CBS Home is in the Gated Community of Sabal Pointe Jensen Beach. Built in 2024 This Move-In-Ready Home Offers Beautifully Designed Living Space and is Packed with Premium Upgrades Including Impact Glass Windows, Tile Flooring Throughout, Quartz Kitchen Countertops, Custom Tile Backsplash, and Upgraded Appliances. Situated on a Prime, Private Lot, There's Plenty of Room to Add a Private Pool, Garden, or Create Your Ideal Outdoor Oasis. As Part of the Sabal Pointe Community, You'll Also Enjoy Access to the Community Pool. Close to Shopping, Dining, Rivers, Beaches, Schools, Doctors, and More!

Essential Information

  • MLS® #R11159093
  • Price$534,900
  • CAD Dollar$726,876
  • UK Pound£400,025
  • Euro€463,584
  • HOA Fees286
  • Bedrooms3
  • Bathrooms2.00
  • Full Baths2
  • Square Footage1,672
  • Year Built2024
  • TypeResidential
  • Sub-TypeSingle Family Residence
  • RestrictionsLease Restrictions
  • StyleRanch, Colonial
  • StatusActive
  • HOPANo Hopa

Community Information

  • Address2033 Ne Ocean Dunes Drive
  • SubdivisionSABAL POINTE
  • DevelopmentSABAL POINTE
  • CityJensen Beach
  • CountyMartin
  • StateFL
  • Zip Code34957

Area

6030 - Jensen Beach/Stuart - North of Roosevelt Br

Amenities

  • # of Garages2
  • ViewPreserve
  • WaterfrontNone
  • Pets AllowedYes, Number Limit, Size Limit

Amenities

Cabana, Pool, Sidewalks, Street Lights

Utilities

Sewer Available, Water Available

Parking

Garage Door Opener, Garage, Attached Garage

Interior

  • Interior FeaturesWalk-In Closet(s)
  • HeatingCentral, Electric
  • # of Stories1

Appliances

Electric Water Heater, Dryer, Disposal, Dishwasher, Electric Range, Microwave, Refrigerator, Water Heater, Washer

Cooling

Central Air, Ceiling Fan(s), Electric

Exterior

  • RoofComposition, Shingle
  • ConstructionCBS
  • Office: Sea Flag Homes

Property Location

Please provide a valid email address.

2033 Ne Ocean Dunes Drive on www.stuarthomes.us

Offered at the current list price of $534,900, this home for sale at 2033 Ne Ocean Dunes Drive features 3 bedrooms and 2 bathrooms. This real estate listing is located in SABAL POINTE of Jensen Beach, FL 34957 and is approximately 1,672 square feet. 2033 Ne Ocean Dunes Drive is listed under the MLS ID of R11159093 and has been available through www.stuarthomes.us for the Jensen Beach real estate market for 41 days.

Similar Listings to 2033 Ne Ocean Dunes Drive

Photo of Listing #R11116675
  • MLS® #: R11116675
  • 431 Ne Julia Court
  • Jensen Beach, FL 34957
  • $485,000
  • 2 Bed, 2 Bath, 988 SqFt
  • Residential
Add as Favorite
Photo of Listing #R11132977
  • MLS® #: R11132977
  • 1092 Nettles Boulevard
  • Jensen Beach, FL 34957
  • $519,000
  • 2 Bed, 1 Bath, 923 SqFt
  • Residential
Add as Favorite
Photo of Listing #R11155222
  • MLS® #: R11155222
  • 3785 Nw Deer Oak Drive
  • Jensen Beach, FL 34957
  • $515,000
  • 3 Bed, 2 Bath, 1,607 SqFt
  • Residential
Add as Favorite
Photo of Listing #R11134024
  • MLS® #: R11134024
  • 4607 Nw Red Bay Circle
  • Jensen Beach, FL 34957
  • $529,000
  • 3 Bed, 2 Bath, 1,907 SqFt
  • Residential
Add as Favorite

All listings featuring the BMLS logo are provided by Beaches MLS Inc. Copyright 2026 Beaches MLS. This information is not verified for authenticity or accuracy and is not guaranteed.
© 2026 Beaches Multiple Listing Service, Inc. All rights reserved.

Listing information last updated on March 12th, 2026 at 10:06pm CDT.