1. Home
  2. Search Listings
  3. 8125 Meadowlark Lane Port St. Lucie, FL - 34952
REDUCED
  • MLS® #: R11165608
  • 8125 Meadowlark Lane
  • Port St. Lucie, FL 34952
  • $124,900
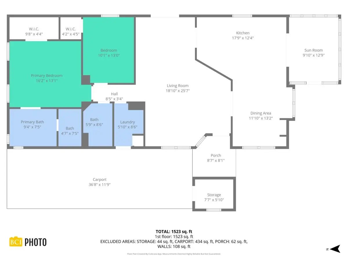
  • 2 Beds, 2 Bath, 1,509 SqFt
  • Residential

PANORAMIC WATERFRONT! Fantastic Location! Enjoy breathtaking sunset water views from your own Florida home! This 2-bed, 2-bath home features all new interior paint, new carpet, 2018-Roof, 2018-AC, 2019-Hot Water Heater, New Hickory Laminate Flooring on the Lanai and in the Family Room and Hurricane Shutters for storm protection. Great for entertaining. Storage Room for pool floats and tools. Don't miss your opportunity to own a slice of Florida in the highly desired Savanna Club. Experience the best of 55+ living with resort style amenities featuring staffed clubhouses, fitness center, 3 swimming pools, tennis, pickle ball, 10,000sf theater, 18 hole golf course, restaurant, etc. Take time to relax or stay busy with the community social calendar. Call today for your private tour!

Essential Information

  • MLS® #R11165608
  • Price$124,900
  • CAD Dollar$171,103
  • UK Pound£93,496
  • Euro€108,268
  • HOA Fees325
  • Bedrooms2
  • Bathrooms2.00
  • Full Baths2
  • Square Footage1,509
  • Year Built2000
  • TypeResidential
  • Sub-TypeManufactured Home
  • StatusPrice Change
  • HOPAYes

Restrictions

Buyer Approval Required, Limited # Vehicles, No Corporate Buyer, Parking - No Commercial Vehicles, Lease Restrictions

Community Information

  • Address8125 Meadowlark Lane
  • Area7190
  • SubdivisionTHE PRESERVE AT SAVANNA CLUB
  • CityPort St. Lucie
  • CountySt. Lucie
  • StateFL
  • Zip Code34952

Amenities

  • ViewLake
  • Is WaterfrontYes
  • WaterfrontLake Front

Amenities

Basketball Court, Billiard Room, Clubhouse, Fitness Center, Golf Course, Game Room, Pool, Sauna, Shuffleboard Court, Spa/Hot Tub, Tennis Court(s), Manager On Site, Bocce Ball, Cafe/Restaurant, Community Room, Library, Pickleball Court(s)

Utilities

Cable Available, Sewer Available, Water Available

Pets Allowed

Yes, Number Limit, Pet Restrictions Possible

Interior

  • HeatingCentral, Electric
  • CoolingCentral Air, Electric
  • # of Stories1

Interior Features

Cathedral Ceiling(s), Pantry, Vaulted Ceiling(s), Walk-In Closet(s), Roman Tub, Storage

Appliances

Electric Water Heater, Cooktop, Dryer, Dishwasher, Microwave, Oven, Refrigerator, Water Heater, Washer

Exterior

  • RoofComposition, Shingle
  • ConstructionModular

School Information

  • ElementarySavanna Ridge
  • MiddleNorthport K-8
  • HighPort St. Lucie
  • Office: Re/max Gold

Property Location

Please provide a valid email address.

8125 Meadowlark Lane on www.stuarthomes.us

Offered at the current list price of $124,900, this home for sale at 8125 Meadowlark Lane features 2 bedrooms and 2 bathrooms. This real estate listing is located in THE PRESERVE AT SAVANNA CLUB of Port St. Lucie, FL 34952 and is approximately 1,509 square feet. 8125 Meadowlark Lane is listed under the MLS ID of R11165608 and has been available through www.stuarthomes.us for the Port St. Lucie real estate market for 25 days.

Similar Listings to 8125 Meadowlark Lane

Photo of Listing #R11142822
  • MLS® #: R11142822
  • 3809 Morning Dove Court
  • Port St. Lucie, FL 34952
  • $124,900
  • 2 Bed, 2 Bath, 1,040 SqFt
  • Residential
Add as Favorite
Photo of Listing #R11155035
  • MLS® #: R11155035
  • 7904 Meadowlark Lane
  • Port St. Lucie, FL 34952
  • $119,900
  • 3 Bed, 2 Bath, 1,421 SqFt
  • Residential
Add as Favorite
Photo of Listing #R11153123
  • MLS® #: R11153123
  • 3808 Hydrilla Court
  • Port St. Lucie, FL 34952
  • $129,000
  • 2 Bed, 2 Bath, 1,319 SqFt
  • Residential
Add as Favorite
Photo of Listing #R11122868
  • MLS® #: R11122868
  • 7 Violetta Lane
  • Port St. Lucie, FL 34952
  • $116,600
  • 2 Bed, 2 Bath, 1,240 SqFt
  • Residential
Add as Favorite

All listings featuring the BMLS logo are provided by Beaches MLS Inc. Copyright 2026 Beaches MLS. This information is not verified for authenticity or accuracy and is not guaranteed.
© 2026 Beaches Multiple Listing Service, Inc. All rights reserved.

Listing information last updated on March 18th, 2026 at 9:59pm CDT.