1. Home
  2. Search Listings
  3. 715 Sw Munjack Circle Port Saint Lucie, FL - 34986
  • MLS® #: RX-11137963
  • 715 Sw Munjack Circle
  • Port Saint Lucie, FL 34986
  • $429,000
  • 3 Beds, 2 Bath, 1,672 SqFt
  • Residential

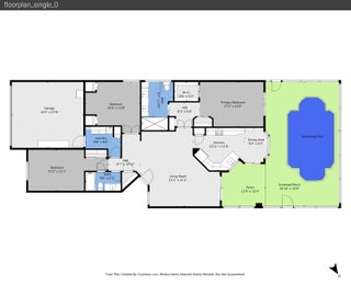
Discover this immaculate 3-bedroom, 2-bath, 2-car-garage pool home in the highly sought-after Lake Charles community of St. Lucie West with low HOA and no CDD, but still includes resort-style pool, lawn-care, security, etc. Enjoy Florida living with a 2018 pool and screened enclosure, perfect for relaxing or entertaining year-round. Major upgrades provide peace of mind, including a complete plumbing re-pipe in 2019 with new water heater and a 2021 A/C system with a 10-year warranty. Functional layout with comfortable living spaces and great natural light. Conveniently located near shopping, dining, schools, and major roadways. A solid opportunity for homeowners and families seeking value, upgrades, and low ongoing costs.Located in the heart of St. Lucie West, close to shopping, dining, golf courses, and minutes from Tradition and I-95.

View Virtual Tour

Essential Information

  • MLS® #RX-11137963
  • Price$429,000
  • CAD Dollar$584,148
  • UK Pound£314,263
  • Euro€361,430
  • HOA Fees301.55
  • Bedrooms3
  • Bathrooms2.00
  • Full Baths2
  • Square Footage1,672
  • Year Built2003
  • TypeResidential
  • Sub-TypeSingle Family Detached
  • StyleRanch
  • StatusActive
  • HOPANo Hopa

Restrictions

Buyer Approval, No Boat, No RV, Tenant Approval

Community Information

  • Address715 Sw Munjack Circle
  • Area7500
  • SubdivisionLAKE CHARLES PHASE 3F
  • CityPort Saint Lucie
  • CountySt. Lucie
  • StateFL
  • Zip Code34986

Amenities

  • ParkingDriveway, Garage - Attached
  • # of Garages2
  • ViewPool, Preserve
  • WaterfrontNone
  • Has PoolYes
  • PoolHeated, Salt Water, Screened
  • Pets AllowedRestricted

Amenities

Billiards, Clubhouse, Pickleball, Pool, Shuffleboard, Tennis

Utilities

Cable, 3-Phase Electric, Public Sewer, Public Water

Interior

  • Interior FeaturesNone
  • HeatingCentral, Electric
  • CoolingCentral, Electric
  • # of Stories1
  • Stories1.00

Appliances

Auto Garage Open, Dishwasher, Disposal, Dryer, Microwave, Range - Electric, Refrigerator, Washer, Water Heater - Elec

Exterior

  • Exterior FeaturesScreen Porch
  • Lot Description< 1/4 Acre, West of US-1
  • RoofBarrel, S-Tile
  • ConstructionCBS
  • Office: Atlantic Shores Era Powered

Property Location

Please provide a valid email address.

715 Sw Munjack Circle on www.stuarthomes.us

Offered at the current list price of $429,000, this home for sale at 715 Sw Munjack Circle features 3 bedrooms and 2 bathrooms. This real estate listing is located in LAKE CHARLES PHASE 3F of Port Saint Lucie, FL 34986 and is approximately 1,672 square feet. 715 Sw Munjack Circle is listed under the MLS ID of RX-11137963 and has been available through www.stuarthomes.us for the Port Saint Lucie real estate market for 101 days.

Similar Listings to 715 Sw Munjack Circle

Photo of Listing #RX-11066667
  • MLS® #: RX-11066667
  • 114 Nw Berkeley Avenue
  • Port Saint Lucie, FL 34986
  • $429,900
  • 4 Bed, 3 Bath, 2,400 SqFt
  • Residential
Add as Favorite
Photo of Listing #RX-11081878
  • MLS® #: RX-11081878
  • 1300 Nw Fiorenza Court
  • Port Saint Lucie, FL 34986
  • $429,900
  • 4 Bed, 3 Bath, 2,534 SqFt
  • Residential
Add as Favorite
Photo of Listing #RX-11084783
  • MLS® #: RX-11084783
  • 731 Sw Great Exuma Cove
  • Port Saint Lucie, FL 34986
  • $465,000
  • 4 Bed, 3 Bath, 2,358 SqFt
  • Residential
Add as Favorite
Photo of Listing #RX-11084927
  • MLS® #: RX-11084927
  • 8513 Belfry Place
  • Port Saint Lucie, FL 34986
  • $399,000
  • 2 Bed, 2 Bath, 1,741 SqFt
  • Residential
Add as Favorite

All listings featuring the BMLS logo are provided by Beaches MLS Inc. Copyright 2026 Beaches MLS. This information is not verified for authenticity or accuracy and is not guaranteed.
© 2026 Beaches Multiple Listing Service, Inc. All rights reserved.

Listing information last updated on February 14th, 2026 at 6:04pm CST.