1. Home
  2. Search Listings
  3. 15 Lake Vista Trail #206 Port Saint Lucie, FL - 34952
  • MLS® #: RX-11145165
  • 15 Lake Vista Trail #206
  • Port Saint Lucie, FL 34952
  • $124,999
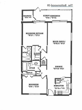
  • 2 Beds, 2 Bath, 1,080 SqFt
  • Residential

Vista St. Lucie is a beautiful, and active, 55+ community in a park-like setting, surrounded by nature. This second-floor unit has garden and wooded views. The A/C and water heater are newer, 2023. Roof 2023. Washer and dryer are located in the unit, just off the patio. The bathroom vanities and mirrors were just replaced last year. The monthly HOA fee includes, water, cable, Internet, trash, building insurance, maintenance of the grounds and common areas, management that is onsite, and the many recreational amenities. These amenities include tennis, pickleball, billiards, a gym, pool, shuffleboard, library, arts and crafts room, and clubhouse with kitchen. Convenient to shopping, dining, civic center, and beaches

View Virtual Tour

Essential Information

  • MLS® #RX-11145165
  • Price$124,999
  • CAD Dollar$169,076
  • UK Pound£91,510
  • Euro€104,969
  • HOA Fees575.55
  • Bedrooms2
  • Bathrooms2.00
  • Full Baths2
  • Square Footage1,080
  • Year Built1987
  • TypeResidential
  • Sub-TypeCondo or Coop
  • Style< 4 Floors
  • Unit Floor206
  • StatusActive
  • HOPAYes-Verified

Community Information

  • Address15 Lake Vista Trail #206
  • Area7150
  • DevelopmentVista St. Lucie
  • CityPort Saint Lucie
  • CountySt. Lucie
  • StateFL
  • Zip Code34952

Subdivision

VISTA ST LUCIE BUILDINGS 9 THRU 20

Amenities

  • ViewGarden
  • WaterfrontNone
  • Pets AllowedNo

Amenities

Billiards, Clubhouse, Community Room, Extra Storage, Exercise Room, Internet Included, Library, Manager on Site, Pickleball, Pool, Shuffleboard, Street Lights, Tennis

Utilities

Cable, Public Sewer, Public Water

Parking

Assigned, Guest, Vehicle Restrictions

Interior

  • Interior FeaturesSplit Bedroom, Walk-in Closet
  • HeatingCentral, Electric
  • CoolingCeiling Fan, Central, Electric
  • # of Stories2
  • Stories2.00

Appliances

Dryer, Fire Alarm, Range - Electric, Refrigerator, Smoke Detector, Washer, Water Heater - Elec

Exterior

  • WindowsBlinds
  • RoofComp Shingle
  • ConstructionConcrete
  • Office: Coastal Breeze Realty Corp

Property Location

Please provide a valid email address.

15 Lake Vista Trail #206 on www.stuarthomes.us

Offered at the current list price of $124,999, this home for sale at 15 Lake Vista Trail #206 features 2 bedrooms and 2 bathrooms. This real estate listing is located in VISTA ST LUCIE BUILDINGS 9 THRU 20 of Port Saint Lucie, FL 34952 and is approximately 1,080 square feet. 15 Lake Vista Trail #206 is listed under the MLS ID of RX-11145165 and has been available through www.stuarthomes.us for the Port Saint Lucie real estate market for 69 days.

All listings featuring the BMLS logo are provided by Beaches MLS Inc. Copyright 2026 Beaches MLS. This information is not verified for authenticity or accuracy and is not guaranteed.
© 2026 Beaches Multiple Listing Service, Inc. All rights reserved.

Listing information last updated on February 11th, 2026 at 2:08pm CST.